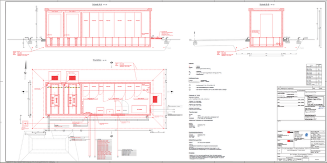
Bahnhof Cottbus Ersatzneubau Trafostation
Projektsteckbrief
Mit diesem Bauvorhaben wurde der Ersatzneubau der Trafostation T2001/3 realisiert. Die Station befindet sich auf dem Gelände des Bahnhof Cottbus an der Sachsendorfer Straße und versorgt Anlagen des Bahnhofs und weiterer eisenbahntechnische Infrastruktur.
Die neue Station wurde mit einer MS-Schaltanlage, Niederspannungshauptverteilung und 2 Trafos 20/0,4kV mit jeweils 400 kVA ausgerüstet. Unser Büro erstellte die Ausführungsplanung nach den Konzernrichtlinien der Deutschen Bahn AG und in Übereinstimmung mit den Verordnungen des Eisenbahnbundesamtes. Neben der Technischen Ausrüstung wurden auch der zugehörige Tiefbau für Gründung der Station, Kabelverlegesysteme (Schächte, Rohre), Entwässerung und Gleisquerungen geplant.
Zeitraum
08/2021 – 08/2022
Anlagenkosten
ca. 920.000,00 €
Bauherr
DB Energie GmbH















